搜索
首页
首页
产品介绍
油烟机
CXW-502-RH21
CXW-210-PH3
CXW-210-PH2
CXW-210-PH1
CXW-200-PH5
CXW-200-PH5S
CXW-200-PH60
洗碗机
DW-17F
DW-72F
DW-71F
燃气灶
JZT-GH4
JZT-GH3
JZT-GH2
JZT-GH1
JZT-PG3T
JZT-PG3
JZT-PG2
JZT-PG1
蒸烤箱
BD-71F
BD-50F
BD-51F
微蒸烤
MSG-H32
嵌入式混合灶
IE-M2
空气炸锅
FO-S6VB
FO-S5M(星月白)
FO-S5M(黑色)
FO-S3M
厨师机
帝王红 FC-Y5MR
珍珠白 FC-Y5MW
曜石黑 FC-Y5MB
破壁机
FB-N20U
多功能空气炸锅
FO-SO6V
关闭
官网直购
厨艺坊
空气炸锅菜谱
蒸烤箱菜谱
关闭
工程合作
工程项目全国VIP专线
400-9933-009
关闭
服务中心
购买咨询
安装服务
售后服务
关闭
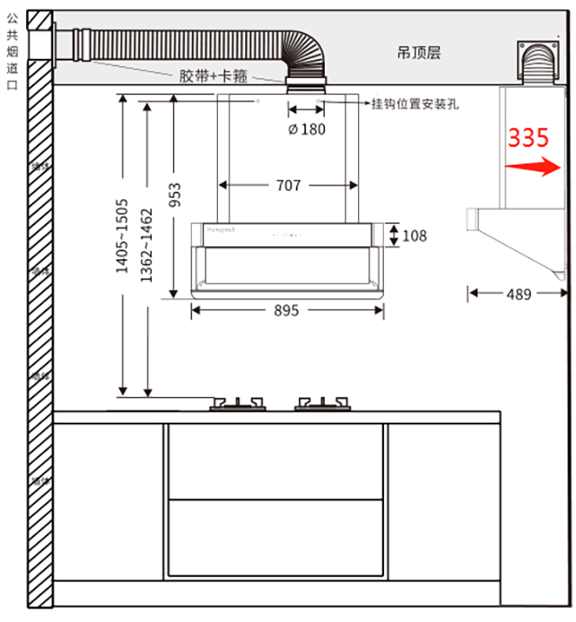
油烟机 CXW-592-RH1
如需安装,全国服务热线客服电话400-9933-009。